Westfield Residence
Three stories of considered living, expressed in light and stone

Overview
Westfield Residence reimagines the suburban villa for contemporary family life. The design breaks down what could be a monolithic three-story mass into a dynamic composition of interlocking volumes — each stepping back as it rises to create generous terraces, strategic shading, and a silhouette that feels composed rather than imposed.
The clients — a family of five — came with a clear program: separate spaces for parents and children, outdoor living on every level, parking for three vehicles, and a home that would age gracefully alongside them. Beyond function, they wanted presence without pretension.
Within a walled compound, the design balances privacy with openness, solid walls with transparent connections, and indoor comfort with outdoor living.

Entry level with covered parking, service areas, and primary living spaces opening to the courtyard garden.
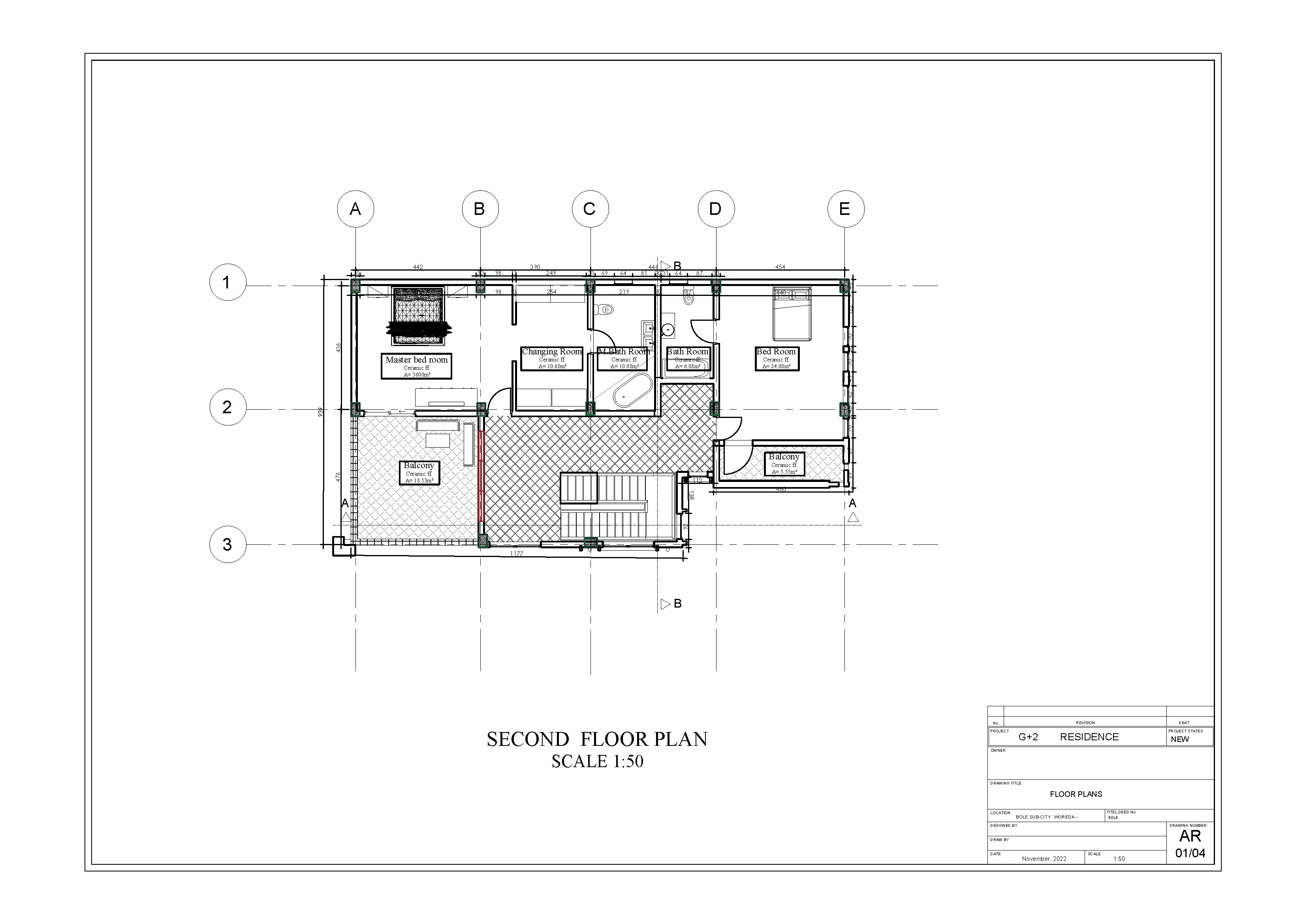
Ground-Level Living
Within the compound wall, the ground floor orchestrates arrival, parking, and daily life around a central courtyard. Living, dining, and kitchen spaces open completely to the garden so family life spills outdoors, while service areas and staff circulation remain discreet along the site's edges.
Covered parking for three vehicles sits beneath the first-floor mass, keeping the facade calm while still providing shade and weather protection at the entry sequence.

Bedroom level with en-suite master and secondary bedrooms, each accessing private terraces.
Private Upper Levels
The first floor separates the parents' suite from the children's wing, each with terraces sized like outdoor rooms. Bathrooms, wardrobes, and lounges are tucked into the darker volumes so the glazed edges can remain open to the landscape without sacrificing privacy.

Upper level with additional bedrooms and roof terrace access.
Massing Strategy
The building's massing solves multiple problems simultaneously. As each floor steps back from the one below, it creates covered outdoor space for the level above — every major room opens onto its own protected terrace. These aren't balconies; they're rooms without walls, sized for furniture, dining, and real occupation.
The stepping also provides natural shading. Upper floors shade lower terraces from harsh afternoon sun, reducing cooling loads while maintaining views and daylight.
A dramatic cantilevered frame marks the main entrance — a rectangular void carved from the building mass that creates a generous covered arrival space. From the street, the composition reads as three interlocking volumes rotating slightly against each other.
Facade Composition
The facade is a study in material orchestration. Three primary materials work together: white cement render forms the dominant volumes, reading as clean planes against the sky; natural stone cladding marks the entry and key moments, adding warmth and texture; dark gray horizontal panels create visual depth through shadow lines.
This isn't decoration applied to a box. Each material responds to what's behind it. Stone clads the entry zone, signaling arrival. White render wraps the primary living volumes. Gray panels clad the more private zones, receding visually.
Black aluminum window frames provide consistent detailing throughout, their varied sizes and proportions responding to interior functions.



